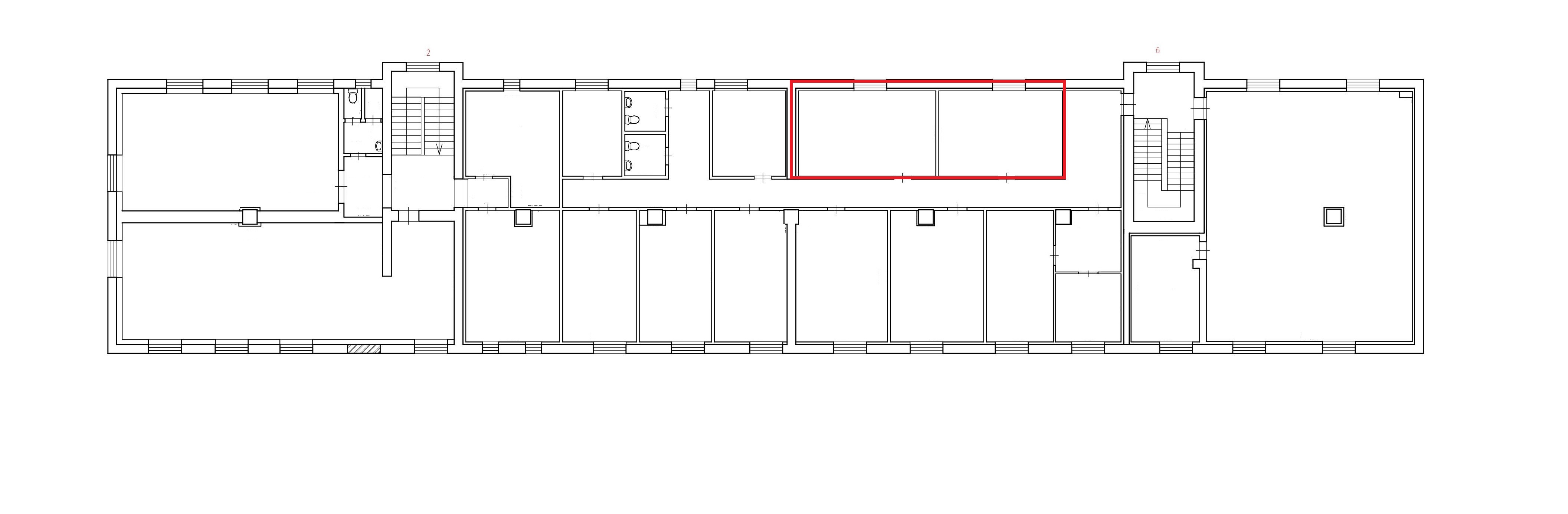
Помещения свободного назначения, 55 кв.м., улица Димитрова, 34
Сдам помещение свободного назначения, площадью 55 кв.м, из двух кабинетов с окном на территории базы, огороженная территория. Есть место для парковки.
Здание расположено в одном из густонаселенных районов города Костромы, а так же непосредственной близости от остановок общественного транспорта и у проезжей части с высокой загруженностью, что обеспечивает высокий трафик.
Звоните и приезжайте смотреть!
Здание расположено в одном из густонаселенных районов города Костромы, а так же непосредственной близости от остановок общественного транспорта и у проезжей части с высокой загруженностью, что обеспечивает высокий трафик.
Звоните и приезжайте смотреть!
Свяжитесь с нами
Написать нам
Похожие предложения