Заказать звонок

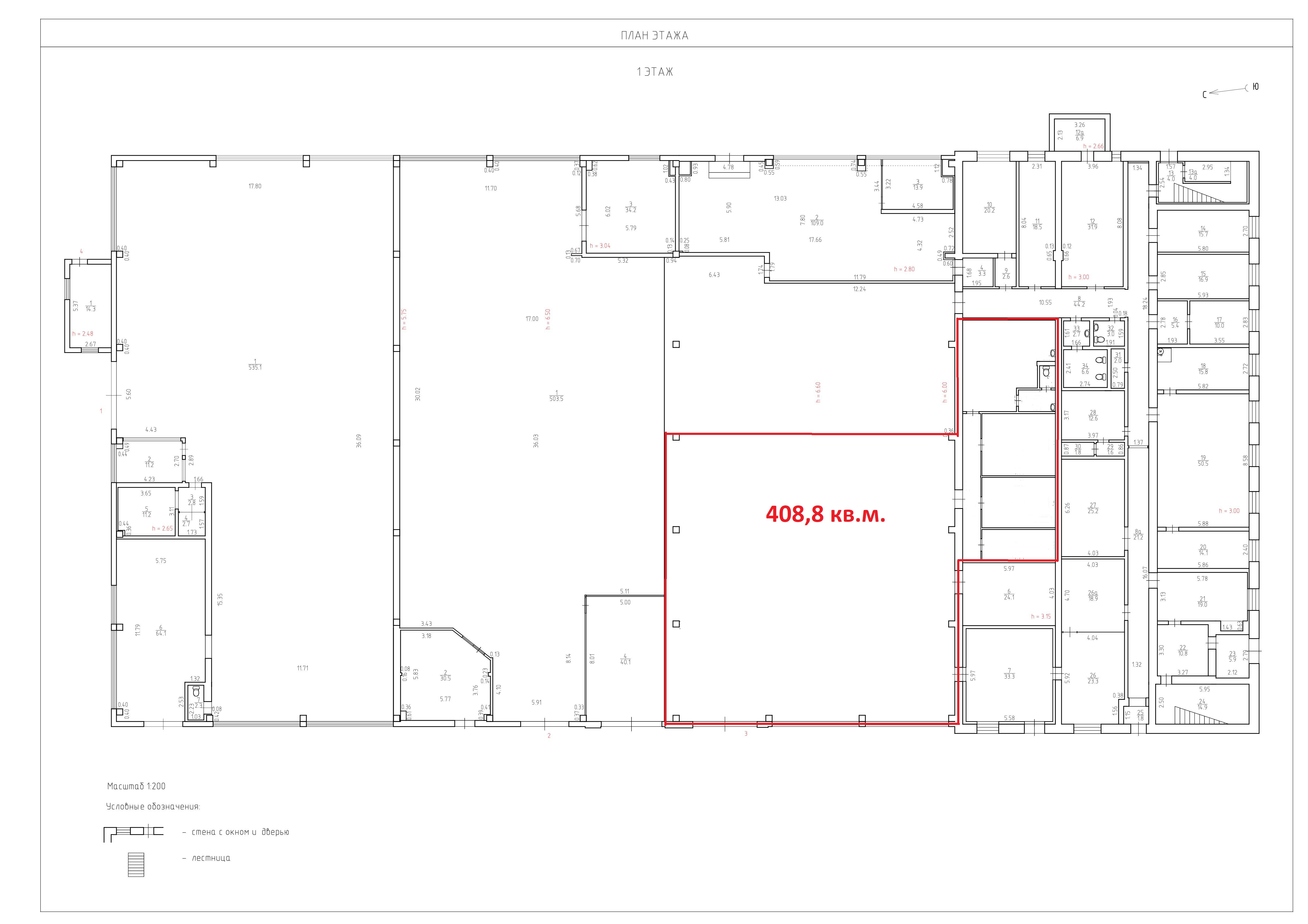
Помещения свободного назначения, 408 кв.м., улица Димитрова, 34

Кострома, улица Димитрова, 34
 
Район
Центральный
Общая площадь
408 м2
Этаж
1
Этажность
1

Записаться на просмотр

Собственник сдаст в аренду помещение 408,8 кв.м. на 1 этаже. Вход в помещение с внутренней территории большие ворота. Имеется офисная часть, с водой и канализацией. Идеально подходит под производство и торговлю строительными и кровельными материалами, мебельное производство, склад автозапчастей и тд. Имеются все необходимые коммуникации: отопление, электричество, водоснабжение. Без комиссии для арендатора.