Заказать звонок

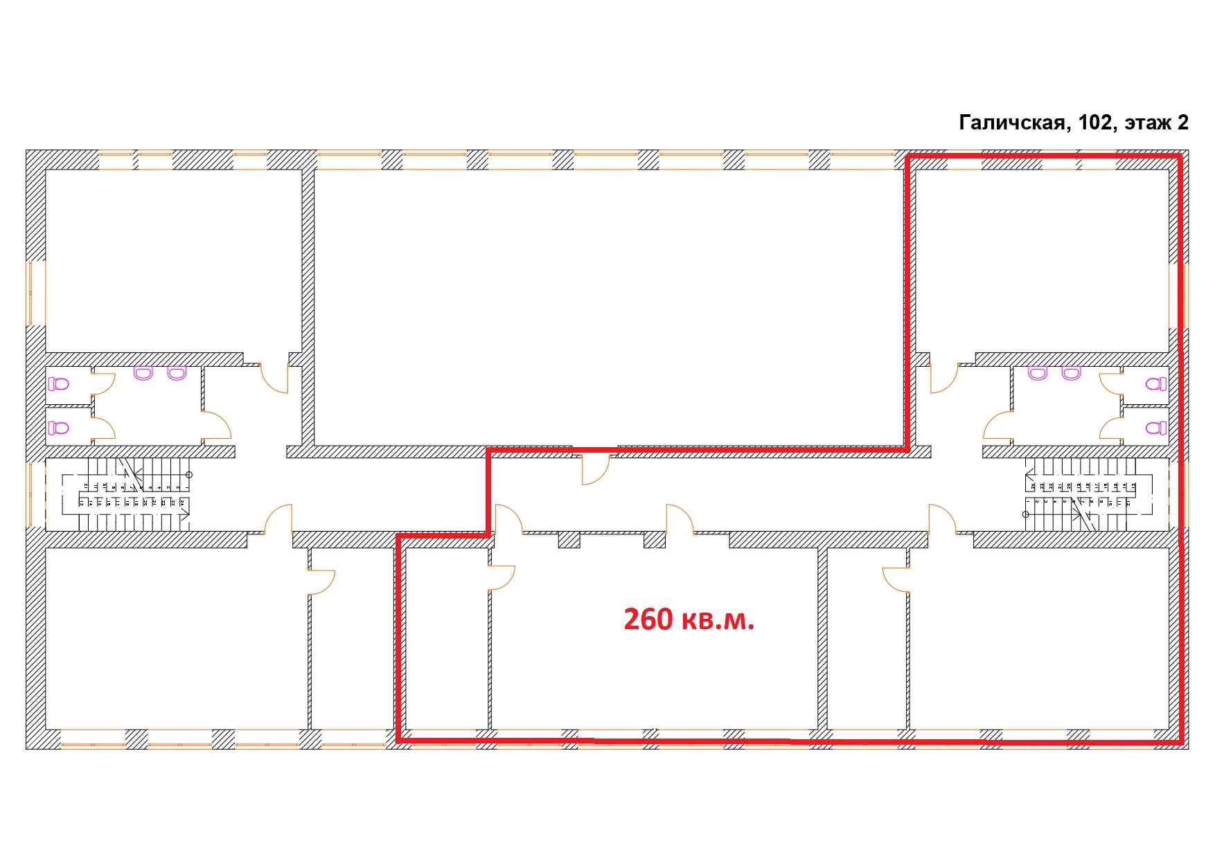
Помещения свободного назначения, 260 кв.м., Галичская улица, 102

Кострома, Галичская улица, 102
 
Район
Центральный
Общая площадь
260 м2
Этаж
2
Этажность
2

Записаться на просмотр

Собственник продаст помещение площадью 260 кв.м., на 2-м этаже.

1 линия улицы Галичская, рядом с ТЦ Стометровка. Высокий автомобильный и пешеходный трафик. 
На территории большой паркинг. На въезде ворота. 
На объекте имеются все коммуникации: отопление, электричество, водоснабжение, канализация.

Полностью заменена кровля (сентябрь 2024). Произведен ремонт отмосток, фасада. Окна заменены на пластиковые. Здание оборудовано новой системой отопления (осень 2024). Заменена проводка.

Пол шлифованный бетон с топингом (беспылевой).
Идеально подходит под швейное, ювелирное производство.

Рядом столовые, базы стройматериалов, продуктов, остановки общественного транспорта. 
Центральное отопление (можно газифицировать, имеется готовый проект). 
Вода канализация центральные.