Заказать звонок

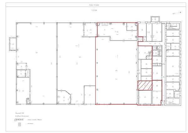
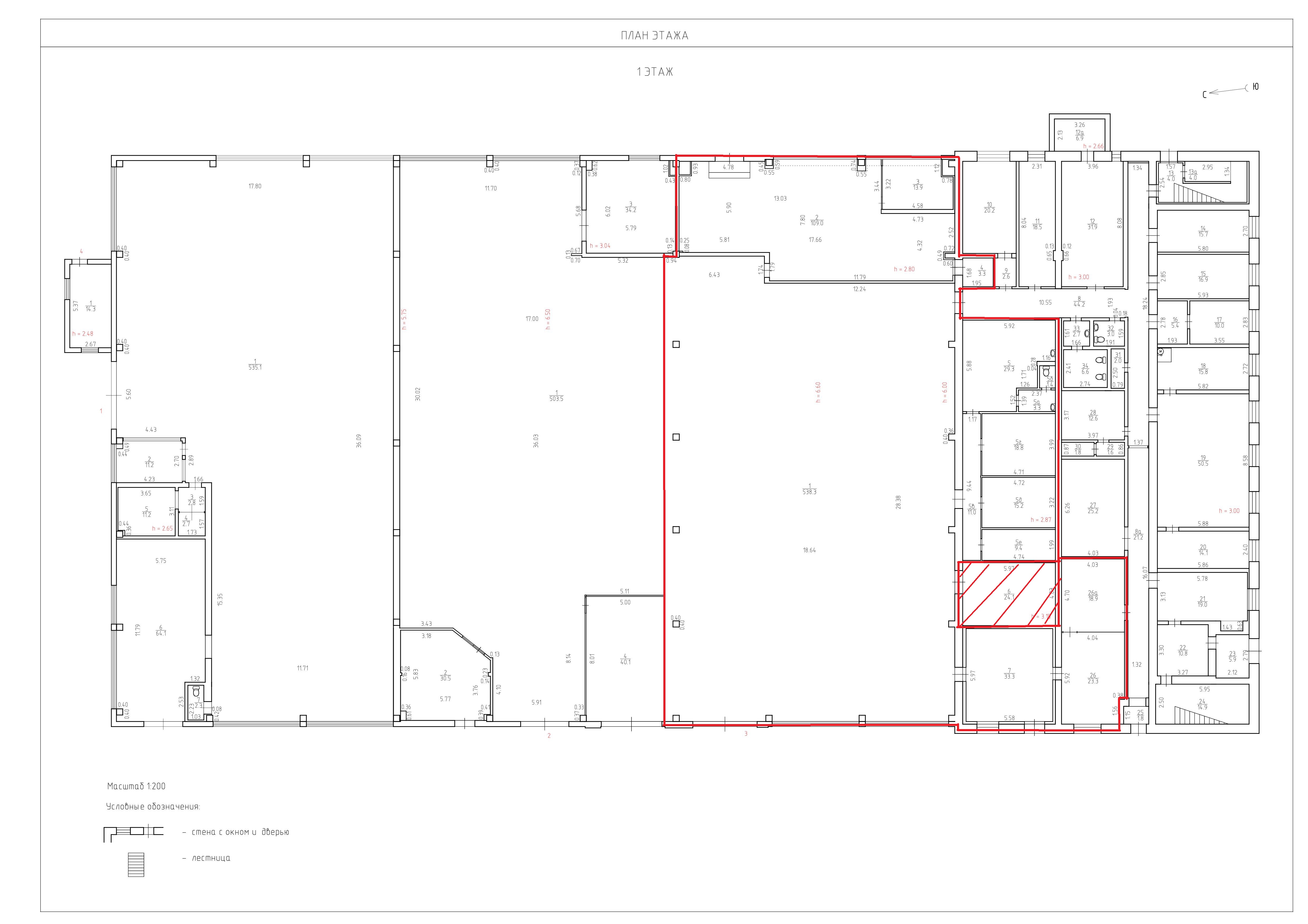
Помещения свободного назначения, 811 кв.м., улица Димитрова, 34

Кострома, улица Димитрова, 34
 
Район
Центральный
Общая площадь
811 м2
Этаж
1
Этажность
1

Записаться на просмотр

Собственник сдаст в аренду помещение 811,6 кв.м. на 1 этаже. В помещение несколько входов: с первой линии улицы Димитрова, с внутренней территории большие ворота, вход в офисную часть. Идеально подходит под производство и торговлю строительными и кровельными материалами, мебельное производство. Имеются все необходимые коммуникации: отопление, электричество, водоснабжение. Без комиссии для арендатора.